Котедж на Льонокомбінаті з комунікаціями

ID: 1591
вулиця Льонокомбинатівська, , Рівне
Район: Льонокомбінат
ціна
45000 $
Ціна за м2 662 $
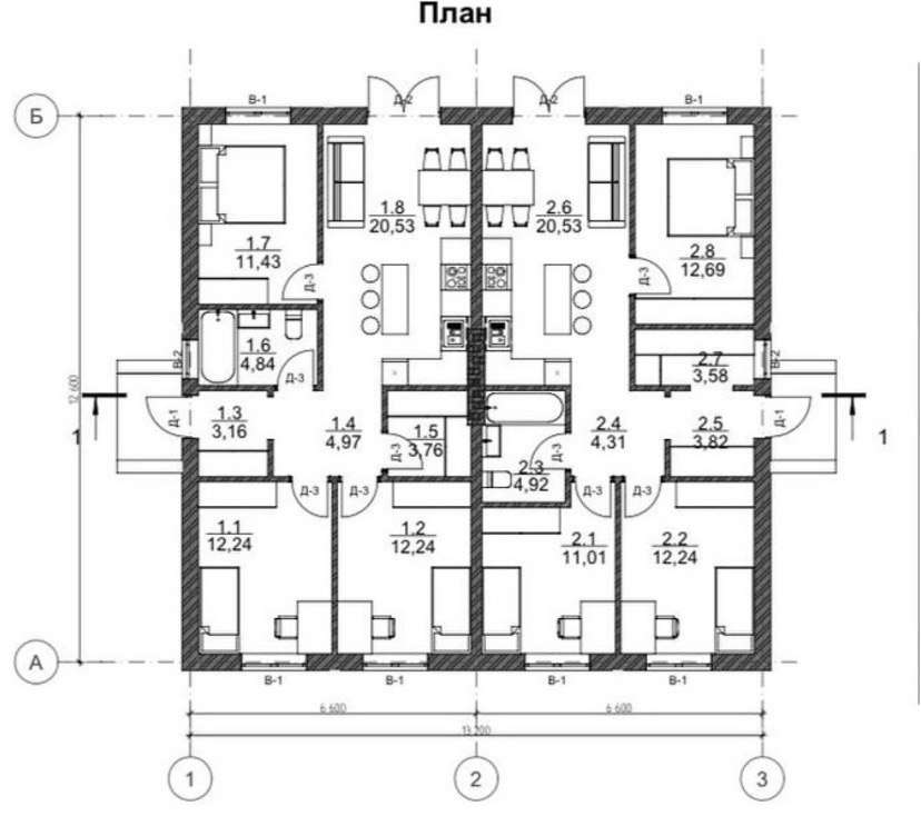
Загальна 68 м2
Житлова 48 м2
Кухня 21 м2
Кімнат 4
Поверховість 1
Ділянка 2 сот
Тип Котеджі
Опис

Продаж одноповерхового котеджу-двояна

Район Льонокомбінату

Площа котеджу - 68кв.м

Земельна ділянка - 2.5 сотки

Три прекрасні кімнати

Простора кухня-вітальня

Коридор, санвузол

Гардеробна кімната

Мережі: електрика 7кВт, септик 9кубів, свердловина.

 

Додатково
Наявність ділянки